Wolverhampton Council Reviews Plans for New Children's Care Home
A significant planning application has been formally submitted to Wolverhampton City Council, proposing the transformation of a residential dwelling into a specialized children's care home. The submission, received on April 7, outlines a change of use for the property located at 1 Harvesters Walk in Wolverhampton.
Details of the Proposed Care Facility
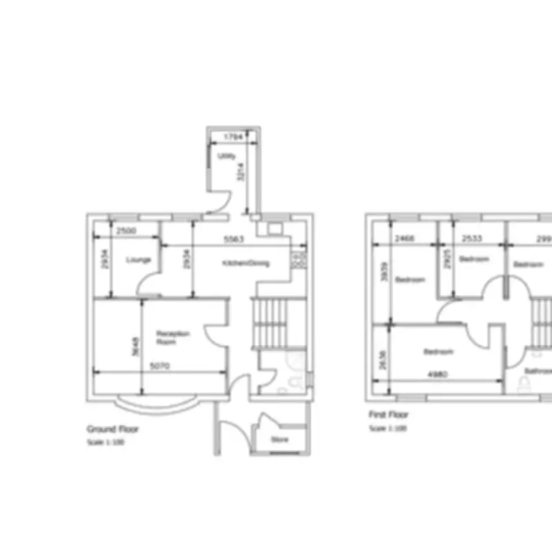
Currently functioning as a four-bedroom residential home, the property would be converted to accommodate up to three children aged between 5 and 17 years old. The care home would specifically serve children with emotional and/or behavioral difficulties (EBD), learning challenges, and sensory impairments.
According to the planning statement available on the council's official website, the facility would feature three dedicated children's bedrooms, a staff office, and a sleepover room for caregivers. The ground floor would include generous communal spaces designed to support the residents' well-being, including a chill-out zone that could double as a therapy room, a combined kitchen and dining area, and a comfortable living room. Additionally, the property boasts a private rear garden for outdoor activities.
Clarification on the Home's Purpose and Operations
The application emphasizes that this proposal is not for a secure children's home, which typically houses individuals deemed a significant risk to themselves or others under court orders. Instead, the children at this home would have low to medium levels of need and are not expected to present serious antisocial behavior.
Residents would attend local schools and participate in everyday community activities, mirroring typical family living. The objective is to foster independence, allowing children to walk to school, meet friends, and engage in local activities, thereby promoting integration and assimilation into the community as normal citizens.
Staffing and Regulatory Oversight
The proposed care home would operate around the clock, with staff present 24 hours a day, seven days a week. A registered manager would maintain a regular on-site presence during work hours to ensure proper supervision and care.
The applicant, represented by agent Anjum Mehmood of Anjum Design Ltd, has expressed a commitment to providing high-quality care for looked-after children. The management team includes a Responsible Individual with substantial experience in the sector and a Registered Manager who holds a Level 5 qualification in Leadership and Management for Childcare.
Upon approval, the home would be registered with and regulated by Ofsted, ensuring compliance with national standards for children's care services.
Community Impact and Next Steps
This planning application represents a potential enhancement to local care services, addressing the needs of vulnerable children in the Wolverhampton area. The council will now review the proposal, considering factors such as community integration, staffing adequacy, and regulatory requirements before making a final decision.



