Solihull Council planners have officially approved a modest housing development in the Bentley Heath area, granting planning permission for eight new four-bedroom homes. The decision marks a significant step forward in addressing the borough's housing supply challenges while navigating green belt considerations.
Development Details and Location
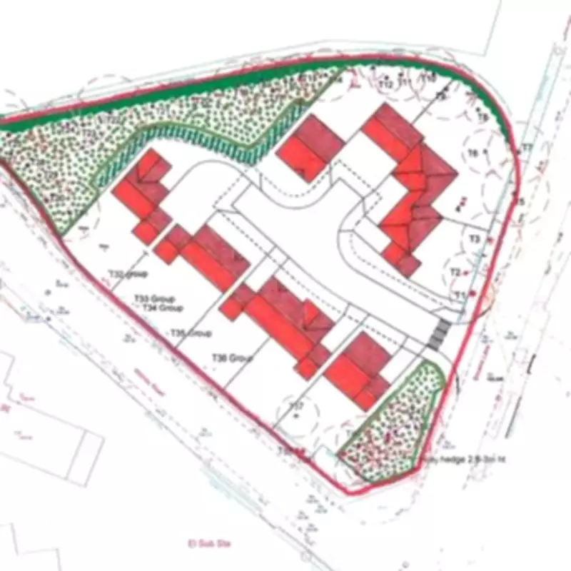
The approved scheme involves constructing eight two-storey homes on a 0.39-hectare plot at the junction of Browns Lane and Widney Road. Applicant Richard Mees submitted the outline planning application in April 2025, proposing a mix of four detached and four semi-detached properties.
A new access road will be created off Browns Lane to serve the development. Planning agent Richard Cobb described the site as an "unused parcel of land situated on the north-western edge of Bentley Heath" within the green belt designation.
Sustainability and Housing Need
The planning statement emphasised the location's sustainability credentials, noting Browns Lane's proximity to various local services and facilities. The development aims to "bolster the significant shortfall in housing supply in Solihull" while representing what the applicant considers "appropriate development in the green belt."
Council officers determined the proposal would not constitute inappropriate development and would help improve housing availability without adversely affecting the wider green belt area.
Community Consultation Response
Last summer's public consultation saw responses from local stakeholders including the Knowle, Dorridge and Bentley Heath Neighbourhood Forum. The forum acknowledged the application represented "a modest self-contained development" on land they described as potentially "grey belt" - lower quality green belt land that might be suitable for housing under new guidelines.
The forum expressed support for the application, noting the developer's commitment to retaining boundary trees, implementing additional landscaping, and creating enhanced grassland areas to meet Biodiversity Net Gain requirements. They confirmed the development would "provide additional housing for the area" while maintaining environmental considerations.
Planning Conditions and Next Steps
On February 2, 2026, Mark Andrews, Solihull Council's Head of Planning, Design and Engagement Service, granted planning permission subject to specific conditions. One key requirement involves submitting a 'reserved matters' application providing detailed specifications for layout, appearance, landscaping, and scale before construction can commence.
The approval represents a balanced approach to development in Solihull, addressing housing needs while considering environmental protections and community input. The application remains publicly accessible through the council's planning portal for residents wishing to review the full details.



