Solihull Planners to Make Crucial Decision on Berkswell Housing Estate
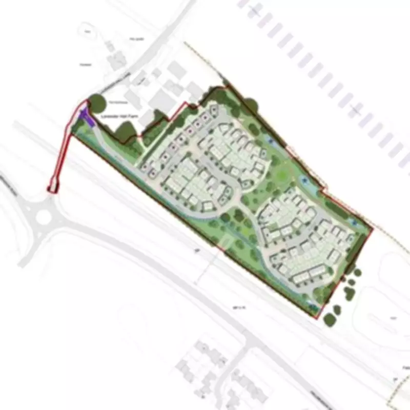
Planners in Solihull are set to make a pivotal decision next week regarding a proposed large-scale housing development on green belt land in the village of Berkswell. The application, submitted by ICMI Associates Ltd, seeks permission to construct a 92-home estate at Lavender Hall Farm, located near the ongoing HS2 construction line.
Affordable Housing and Community Features
The development proposal includes a significant affordable housing component, with 40% of the homes designated as affordable. This allocation is split with 65% for social rent and 35% for shared ownership. Additionally, the scheme plans to incorporate open green spaces and a dedicated children's play area to enhance community amenities.
In their application, agents from Stansgate Planning argue that the site is sustainable, being within walking distance of Berkswell train station, a health centre, shops, and schools. They emphasize that Solihull Council currently lacks a five-year housing land supply and has struggled to provide sufficient housing over an extended period, suggesting this development could help address that shortfall.
Green Belt Concerns and Objections
The proposal has sparked considerable controversy due to its location on green belt land. Objectors have raised multiple concerns, including the impact on the green belt, increased pressure on local services such as schools and healthcare, and potential traffic congestion in the village. The application has been 'called in' for review by the planning committee due to the high number of objections and its anticipated significant impact beyond the immediate area.
Council officers, in a pre-meeting report, acknowledge that the development would constitute inappropriate development within the green belt. However, they conclude that the benefits of the proposal, particularly in addressing housing needs, outweigh the identified harms, thereby meeting the 'very special circumstances' required for approval.
Next Steps and Public Access
The planning committee meeting is scheduled for Wednesday, March 11, at 6pm in the Civic Suite. It is open to the public and will also be streamed live on the council's website. Officers have recommended approval, subject to conditions and the signing of a Section 106 agreement, which typically involves contributions to local infrastructure.
Residents and interested parties can view the full application details by searching for reference PL/2024/02845/PPOL on the Solihull Council website. This decision marks a critical juncture in balancing housing demands with environmental preservation in the region.
